|
|
|
|
CYB 1151L系列单法兰隔膜压力/液位变送器
|
| 一、 产品介绍: |
二、 实物图例: |
CYB 1151L系列单法兰隔膜压力/液位变送器主要用于对粘稠度大,或悬浮物多、或腐蚀性强的介质压力测量。
传感器采用了与介质大面积接触的法兰隔膜式电容压力传感器。由于隔离膜片大面积接触介质,所以可适用于对粘稠度大、悬浮物多的流体压力测量。
法兰隔离膜片可为316不锈钢、哈氏合金C、蒙乃尔、钽等,用户可根据被测介质的腐蚀性进行选择。 |
 |
三、 技术参数:
|
量 程 范 围
|
0-6.2~37.4 0-31.1~186.8 0-117~690(ka)
|
|
压 力 形 式
|
压力 液位 |
|
输 出 信 号
|
4~20 mA (1~5V) 二线制 |
|
0~10 mA (1~5V) 三线制 |
|
精 度
|
0.2、 0.25、 0.5
|
|
非线性迟滞重复性
|
≤0.2、 ≤0.25、 ≤0.5(%FS)
|
|
零点及灵敏度温度漂移
|
≤0.01 ≤0.02
≤0.03(%FS/℃)
|
|
长 期 稳 定 性
|
≤0.1 ≤0.3 ≤0.5(%FS/年)
|
|
工 作 电 压
|
+24(v) |
|
存 储 温 度
|
-50~+120(℃)
|
|
工 作 温 度
|
-40~+104(℃)
|
|
测 量 介 质 |
与316L兼容的所有腐蚀性介质 |
|
膜 片 材 料 |
316L不锈钢;钽 |
|
法 兰 接 口 |
碳钢镀镉,316L不锈钢 |
|
防 护 等 级
|
Diibt5和iaIICT6 |
|
| 四、工作原理:
|
| 变送器由传感器和电子电路两部分组成。电路原理与其它CYB变送器相同,区别主要是传感器部分。法兰隔膜式压力(液位)传感器以电容式压力传感器为基础,介质压力作用在法兰隔离膜片上.在法兰隔离膜片和电容压力传感器的移动膜片之间腔体内充满硅油,被测介质的压力通过隔离膜片,经硅油传递到电容压力传感器的移动膜片上,使电容量发生与被测压力成正比的变化。
|
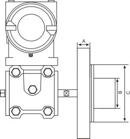
| 五、安装法兰规格与尺寸:
|
|
|
|
规格尺寸
|
螺栓孔
|
|
代号
|
尺寸
|
规格
|
直径
|
A
|
B
|
C
|
数量
|
直径
|
分布直径
|
|
A
|
3"
|
1501b
|
190.5
|
30
|
66
|
127
|
4
|
19
|
152
|
|
B
|
4"
|
1501b
|
228.6
|
30
|
89
|
157
|
8
|
19
|
190
|
|
C
|
3"
|
3001b
|
209.6
|
35
|
66
|
127
|
8
|
22.2
|
168
|
|
D
|
4"
|
3001b
|
254
|
38
|
89
|
157
|
8
|
22.2
|
200
|
| 六、插入筒长度:
|
|
50mm
100mm 150mm
|
| 七、
外型结构:
|
|
|
|
|